Eng Рус

Комплект ирригационный КИ-10

Прошедший Государственные испытания в 2007 году, протокол № 03-42-07 (1180012)

Технические характеристики

Расход воды, л/с 10,0...11,0
Напор в патрубке входном, м до 60
Орошаемая площадь, га 10,4
Площадь одновременного полива, га 0,345
Количество одновременно работающих дождевальных аппаратов 6
Расстояния между тройниками и аппаратами, м 24
Средняя интенсивность дождя с учетом перекрытия, мм/час 10,42...11,46
Продолжительность полива одной позиции при поливной норме 300 м³/га, час 2,9...2,6
Количество обслуживающего персонала, чел. 1-2
Коэффициент эффективного полива 0,6

Краткое описание

Комплект ирригационного оборудования КИ-10 (далее «комплект КИ-10») предназначен для поливов технических, кормовых, овощных и бахчевых культур, картофеля, сенокосов и пастбищ во всех зонах орошаемого земледелия на площади до 10 га при общем положительном уклоне не более 0,02 и местных уклонах до 0,05.

В состав комплекта входят распределительный трубопровод и два переносных дождевальных крыла, осуществляющих полив попеременно.

Комплект КИ-10 может осуществлять забор воды от гидрантов закрытой оросительной сети или передвижных насосных станций, устанавливаемых у открытого водоисточника.

Комплект КИ-10 состоит из распределительного трубопровода, двух переносных дождевальных крыльев со среднеструйными аппаратами, соединительной и запорно-регулирующей арматуры, входного патрубка и манометра.

В комплекте КИ-10 используются полиэтиленовые трубы для работы при напорах до 60 м. Трубы длиной 6 м с фасками, оснащены двумя металлическими хомутами, установленными на концах труб. При монтаже трубы соединяются между собой двухсторонними муфтами из полиуретана с двумя самоуплотняющимися резиновыми манжетами и фиксируются с помощью специальных стальных скоб, вставляемых в отверстия «ушек» металлических хомутов соседних труб.

Транспортирующий трубопровод, поставляемый по просьбе заказчика, предназначен для подачи воды от источника — гидранта оросительной сети или насосной станции к распределительному трубопроводу. Он монтируется из полиэтиленовых труб диаметром 110 мм длиной по 6м с помощью быстросборно-разборных соединительных двухсторонних муфт. Общая длина транспортирующего трубопровода до 150 м — в зависимости от расстояния от водоисточника до орошаемого участка.

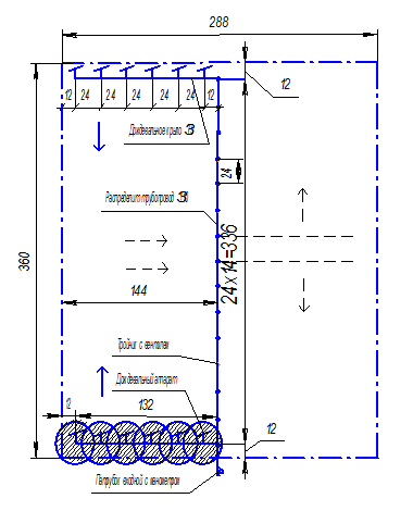
Распределительный трубопровод длиной 348 м собирается из полиэтиленовых труб диаметром 110 мм длиной по 6м с помощью двухсторонних муфт и включает в себя 14 тройников 110×110×75 мм и один концевой угольник с вентилями, расположенных через 24 м друг от друга и служащих для присоединения к ним дождевальных крыльев.

Комплект включает в себя два переносных дождевальных крыла длиной по 132 м каждое. Крыло собирают из 22 шестиметровых полиэтиленовых труб диаметром 75 мм. На каждом крыле устанавливают 6 дождевальных аппаратов с расстоянием между ними 24 м, причем первый аппарат устанавливают на расстоянии 12 м от начала дождевального крыла.

Дождевальные аппараты устанавливаются через переходники на стояках, ввинчиваемых в патрубки соединительных муфт.

Новизна комплекта подтверждена патентами РФ № 37589, № 55538, № 79375.

Россия, 107139, г. Москва, Орликов переулок, д. 1/11 Справочная служба +7 (495) 607-80-00